Arc Clockwise Office

顺时针的办公场域

Client
Biopharma 生物药企

Year Location
2025 Shanghai 上海

Area Status
5000 sqm Under Construction 在建

An efficient office system defined by curved spatial language and clockwise circulation.

一个以弧线为空间语言、以顺时针动线为使用逻辑的高效办公系统

3S is a leading biotechnology company dedicated to innovative research and advanced technological applications. In this project, the PER team aims to express a sense of organic vitality through spatial design, allowing the office to function not only as an efficient workplace, but also as an environment that inspires creativity and supports comfort and freedom in everyday working life.
The design follows a clean and restrained aesthetic, while carefully integrating acoustic control and functional efficiency, ensuring that every level supports both productivity and the physical and mental well-being of its users.

3S 是一家领先的生物科技公司,专注于创新研发与高端技术应用。PER 团队在设计中希望通过空间体现“有机生命力”的理念,使办公室不仅成为高效运作的场所,更是激发灵感、舒适自由的生活与工作环境。设计追求干净简约的美学,同时兼顾声场控制与功能高效,让每一层空间都服务于员工的工作体验与身心舒适。

The 5,000㎡ office is conceived around the principles of openness, flow and freedom. Circulation is designed to be intuitive and continuous, connecting the reception lobby, workspaces, pantry areas, meeting rooms and outdoor gardens into looped and multi-directional paths. This allows employees to easily shift between focused work, informal interaction and moments of rest.
While maintaining visual openness and spatial clarity, acoustic strategies are carefully integrated to ensure calm and efficiency within open-plan environments. The seamless integration of interior and exterior spaces introduces natural light, greenery and fresh air into daily working life, creating an environment that feels both comfortable and alive.

整个 5000㎡ 办公空间以开放、流动和自由为核心理念。动线设计自然而顺畅:从接待大堂到办公区、茶水间、会议室,再到室外花园,形成环状或多路径循环,使员工在高效工作之余随时切换休憩和交流。空间在视觉上保持开放通透,同时通过声场设计确保开放区的静谧和高效办公需求。室内外空间的融合让自然采光、绿植与空气成为日常办公体验的一部分,使办公过程轻松舒适且富有生命力。

The two outdoor gardens on the third floor not only provide greenery but also serve as spaces for relaxation, interaction, and inspiration. Transitions between the gardens, office areas, and break rooms are achieved through glass partitions and natural materials, ensuring visual continuity and seamless circulation. Natural light permeates the workspaces, enhancing the interior's vitality. The greenery and organic elements introduced by the garden landscapes amplify the space's liveliness, seamlessly merging indoor and outdoor environments.

三层两处室外花园不仅提供绿植景观,更成为休憩、交流和灵感触发的空间。花园与办公区及茶水间通过玻璃隔断和自然材质过渡,实现视觉与动线上的连续性。自然采光穿透办公区,增强室内活力感,花园景观引入的绿色与有机元素强化空间的生命力,使室内外空间自然融合。

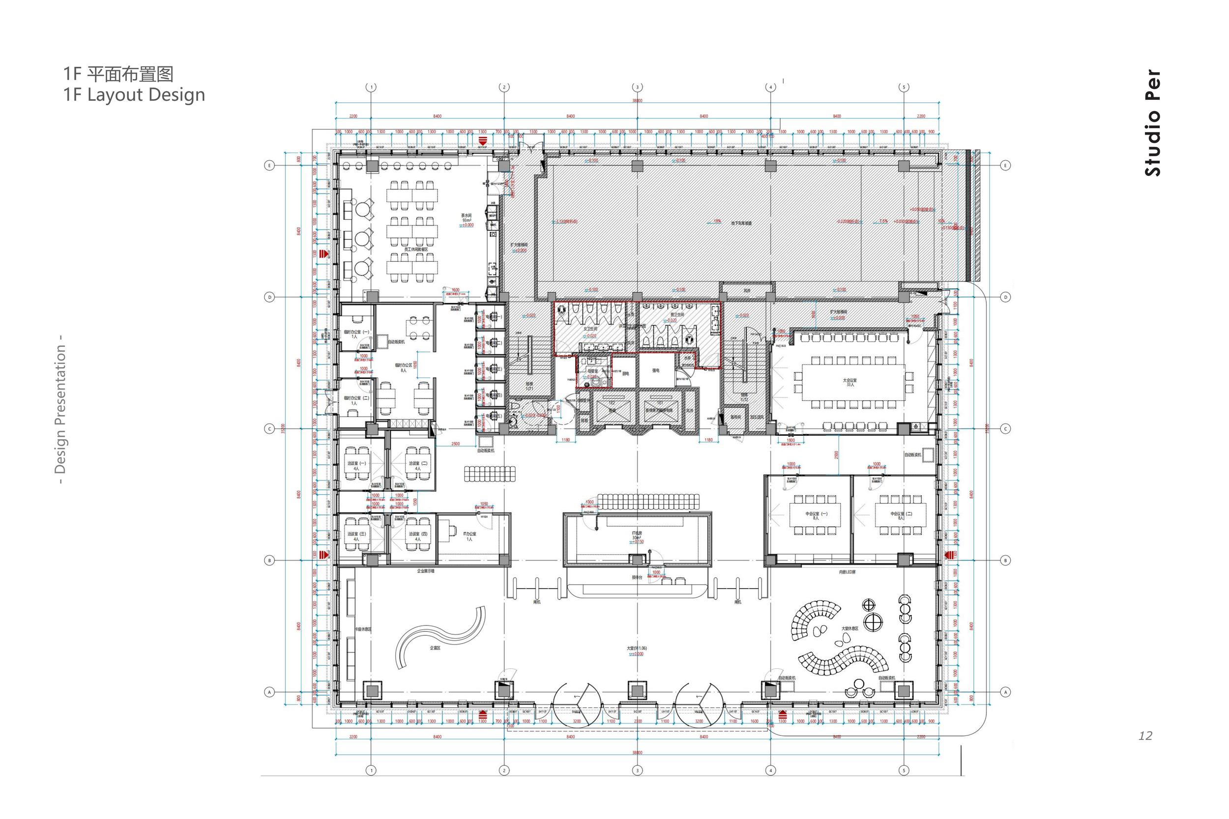
  • The ground floor accommodates the reception lobby, lounge areas, pantry, meeting rooms and temporary workspaces. The lobby is designed as a bright and generous space, presenting a professional corporate image through a restrained material palette and soft lighting, while offering a comfortable and relaxed waiting experience.
    Lounge and temporary work areas are furnished with flexible arrangements, supporting both visitor reception and short-term work needs. The corporate showcase is seamlessly integrated into the lobby through display walls and multimedia elements, reinforcing brand identity and corporate culture.

    一层主要包含接待大堂、休息区、茶水间、会议室和临时办公区。大堂宽敞明亮,以简约材质和柔和灯光呈现企业专业形象,同时营造自由舒适的等待体验。休息区与临时办公区采用灵活家具布局,兼顾访客接待与员工短时办公需求。企业宣传区通过展示墙与多媒体展示与大堂自然融合,强化品牌文化体验

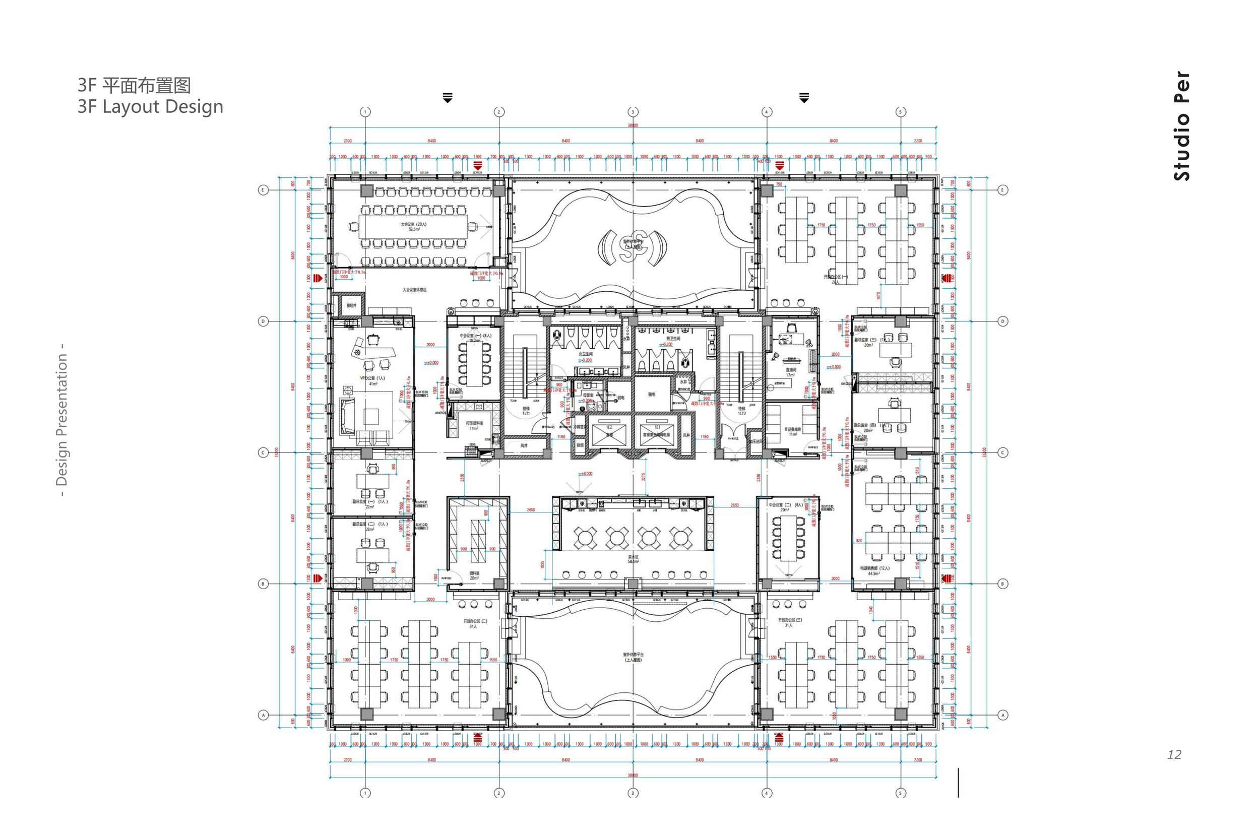
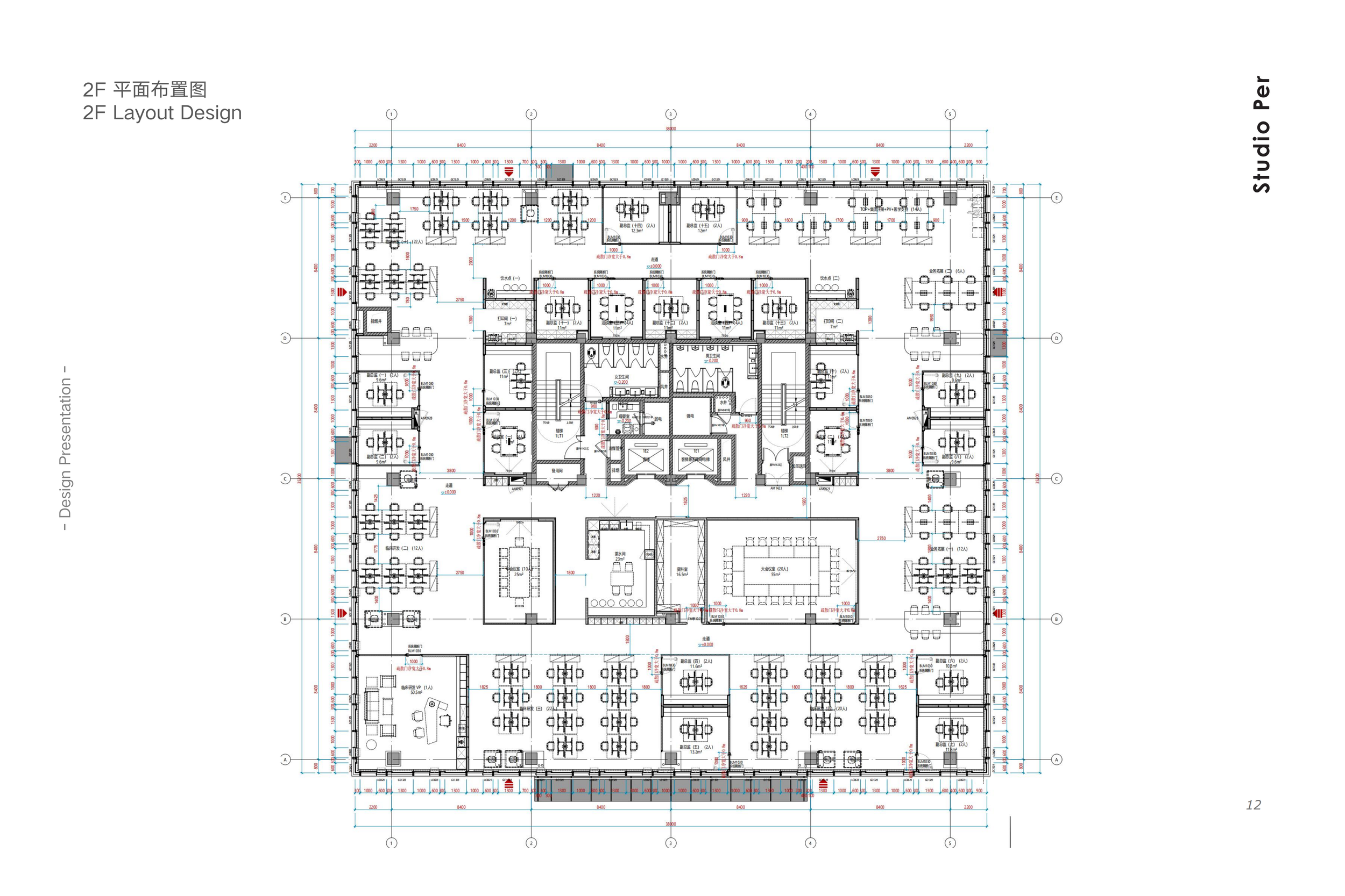
  • Levels two to four form the primary working environment, combining open-plan workspaces with pantry areas, VP offices and management rooms. Open work areas are organized with low-height furniture and flexible layouts to maintain visual openness and freedom of movement, while acoustic treatments and lighting strategies support focused and efficient working conditions.
    On level three, two outdoor gardens are introduced on the north and south sides, connecting open workspaces and the main meeting areas. Glass partitions and timber platforms create a continuous visual and spatial relationship between interior and exterior, allowing natural light and greenery to become part of the daily working experience. Employees can move fluidly along intuitive circulation paths, shifting easily between work, rest and informal interaction.

    二至四层为主要办公区域,结合开放办公区、茶水间、VP 办公室和管理间。开放办公区家具低矮、布局灵活,保证视线通透和自由活动,同时结合声学材料和灯光设计,实现高效办公环境。三层特别设计有南北两处室外花园,分别连接开放办公区和大会议区,通过玻璃隔断和木质地台实现室内外视觉及动线贯通,让自然光与绿植融入办公体验。员工可沿自然动线自由流动,轻松在工作、休憩和交流之间切换

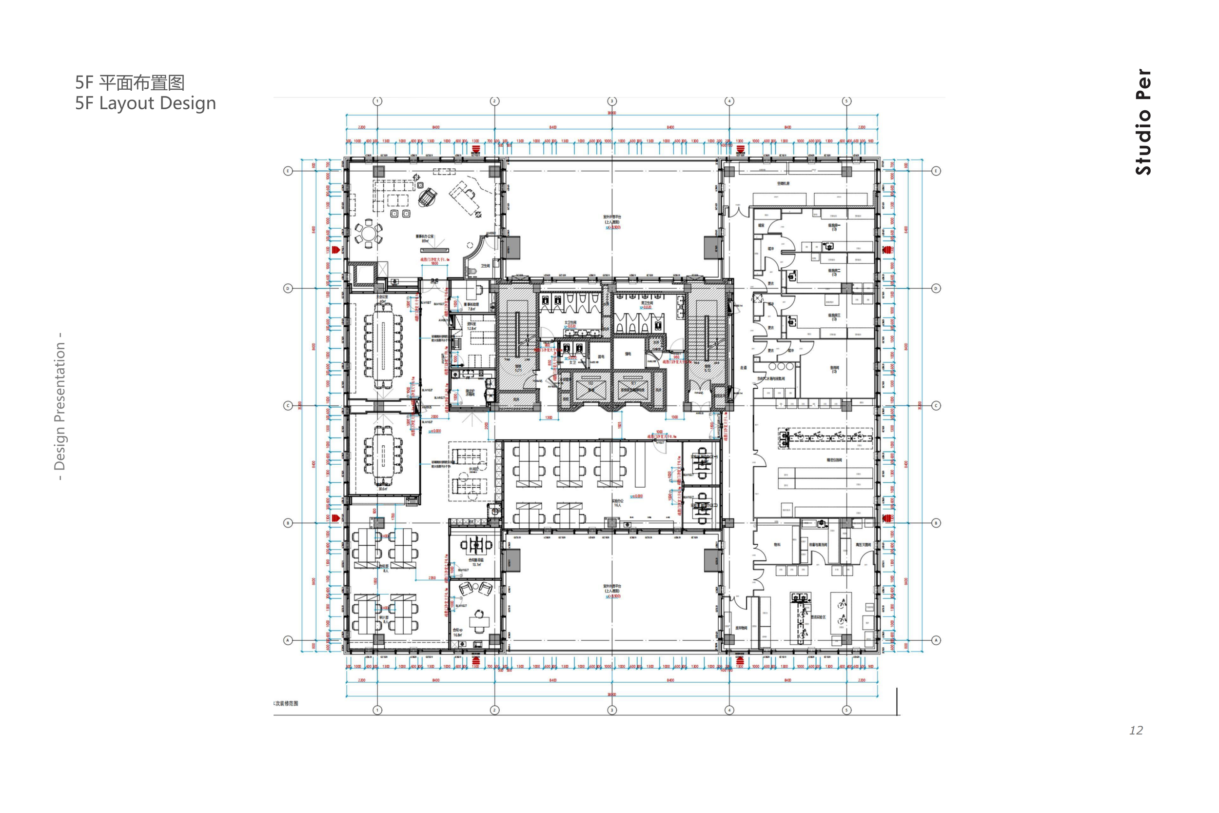
  • Level five is dedicated to senior management and the CEO office, with an emphasis on privacy and comfort. Continuing the overall spatial language, natural materials, soft lighting and planted elements are used to maintain a sense of vitality and calm, while supporting the functional and efficiency requirements of executive work.

    五层为高层管理和老板办公室,强调私密性与舒适性。延续整体空间风格,通过自然材质、柔和光线和绿植元素保持空间的生命力与轻松感,同时兼顾高效办公和功能需求



Public areas are finished with LVT flooring, matte metal elements and wall surfaces with subtle natural textures, creating a clean and restrained visual language. Selected textile finishes, acoustic materials and integrated sound-control strategies are applied to improve acoustic performance, ensuring calm and efficient working conditions within open-plan environments.
Private areas—including meeting rooms, VP offices and executive spaces—are defined by softer, adjustable lighting in combination with carefully harnessed natural daylight, creating an atmosphere that is comfortable, relaxed and conducive to focused work.

Soft furnishings are curated using natural-material furniture, low-profile lounge seating and planted elements, enhancing the sense of warmth and vitality throughout the space. Flexible furniture arrangements in pantry areas, lounges and around the gardens support informal interaction and moments of rest.
The overall soft furnishing strategy emphasizes spatial layering and a balanced sense of energy, allowing each functional area to remain both efficient and comfortable, while offering an inspiring and human-centered working environment.



公区采用LVT地板、哑光金属和带有自然肌理的墙面,整体干净简约;局部织物、吸音材料和声学处理改善声场效果,保证开放办公区的静谧与高效。私区(会议室、VP 办公室、高层管理区)灯光柔和可调,结合自然光采集,营造舒适、自由且集中注意力的环境。


软装以自然材质家具、低矮休闲座椅和绿植点缀,使空间更具亲和力和生命力。茶水间、休息区和花园周边的柔性家具布置,让员工自由交流和临时休憩。整体软装策略强调空间层次感与活力,使每个功能区既高效又舒适,为员工提供自由、灵感和舒适并存的办公体验。


Previous
Previous

Rooftop Garden 顶层花园

Next
Next

Factory Entrance 门卫亭